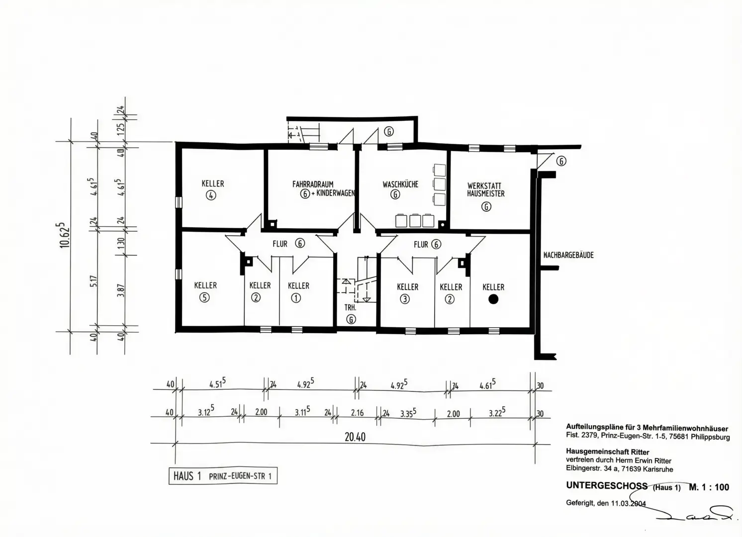
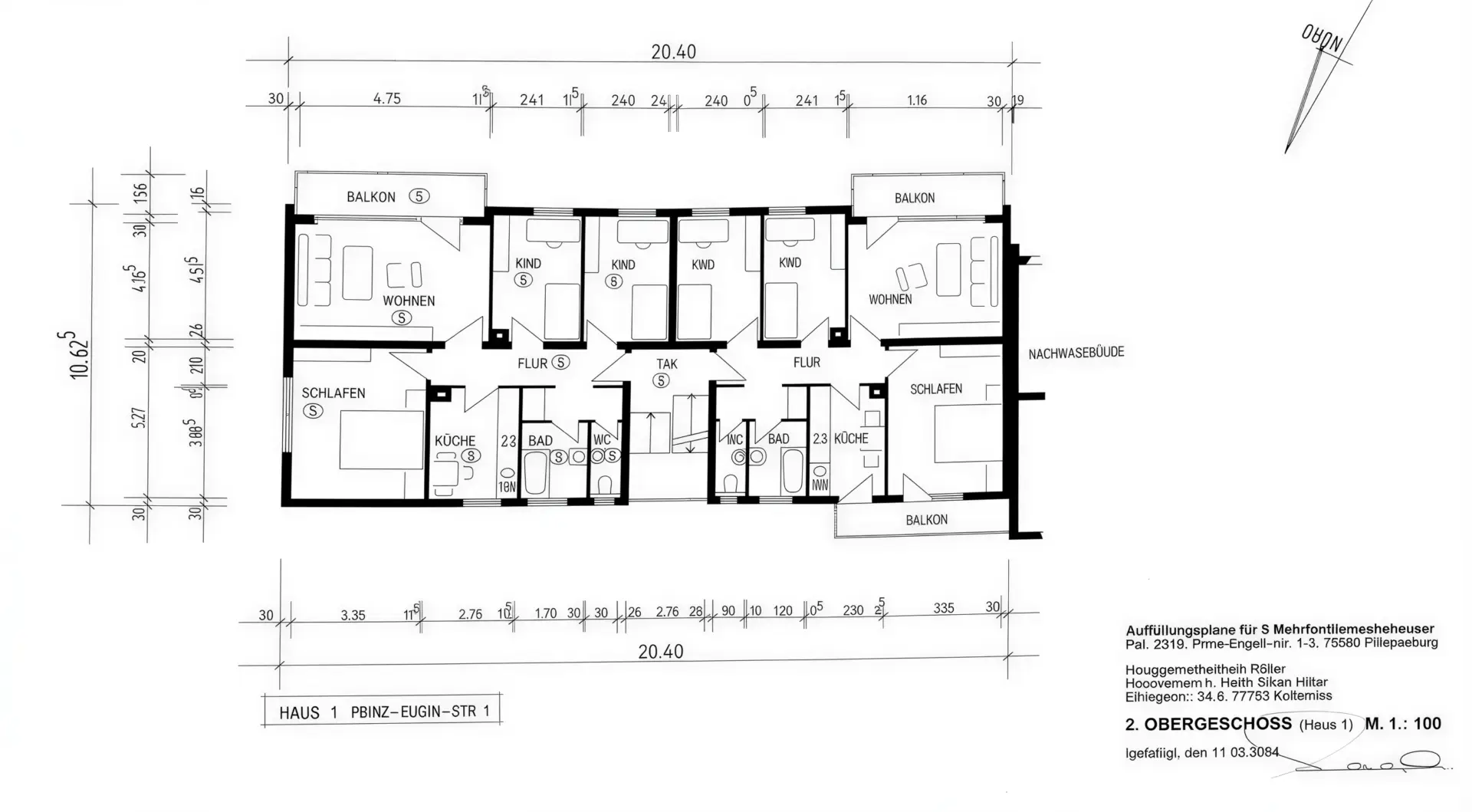
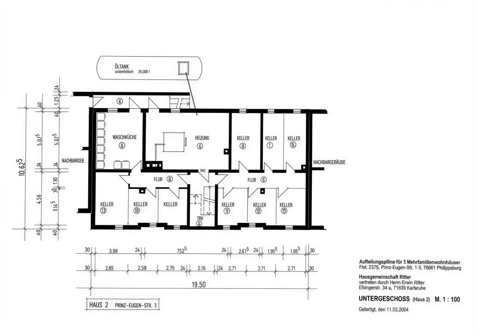
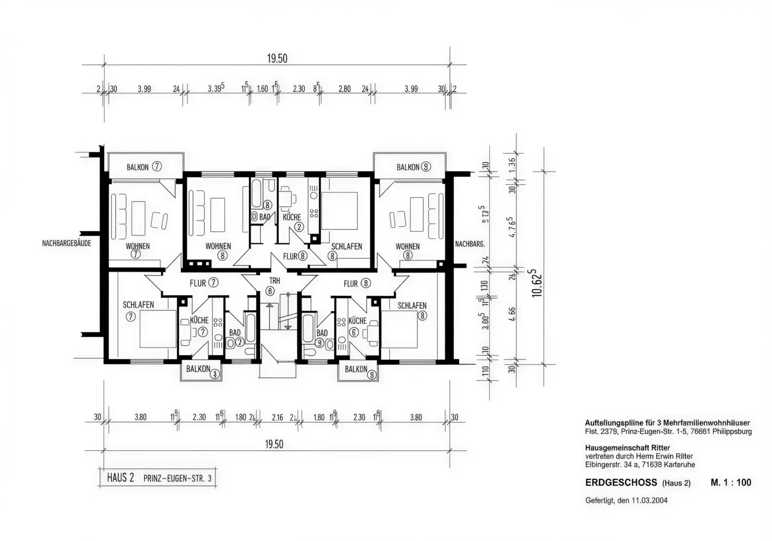
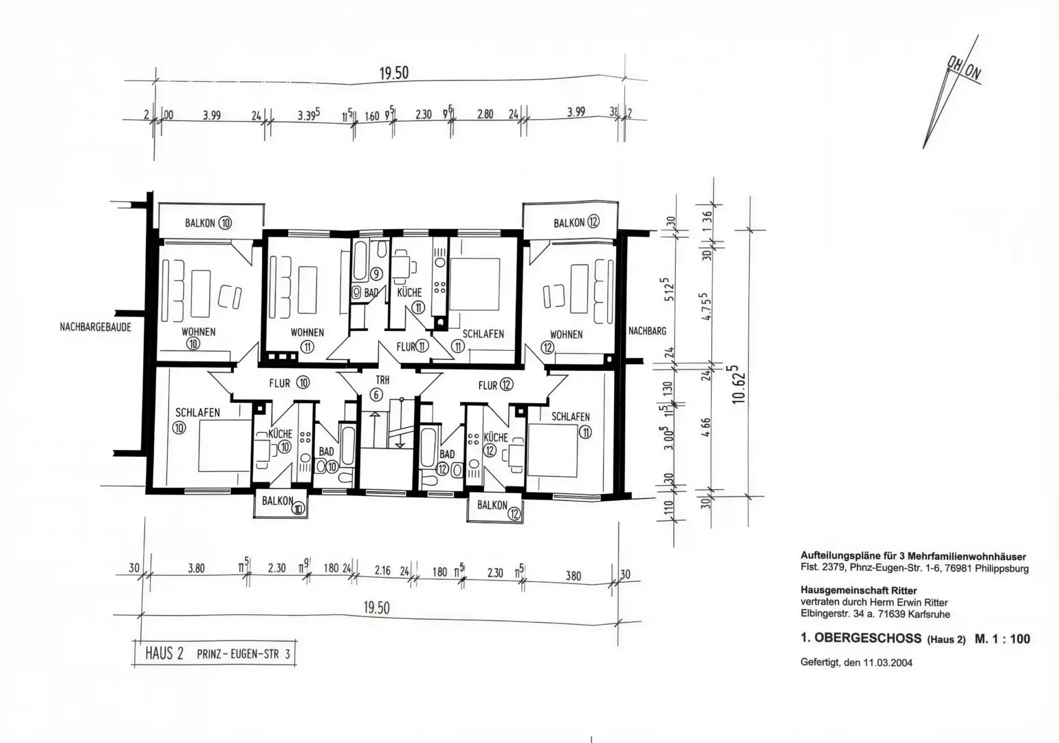
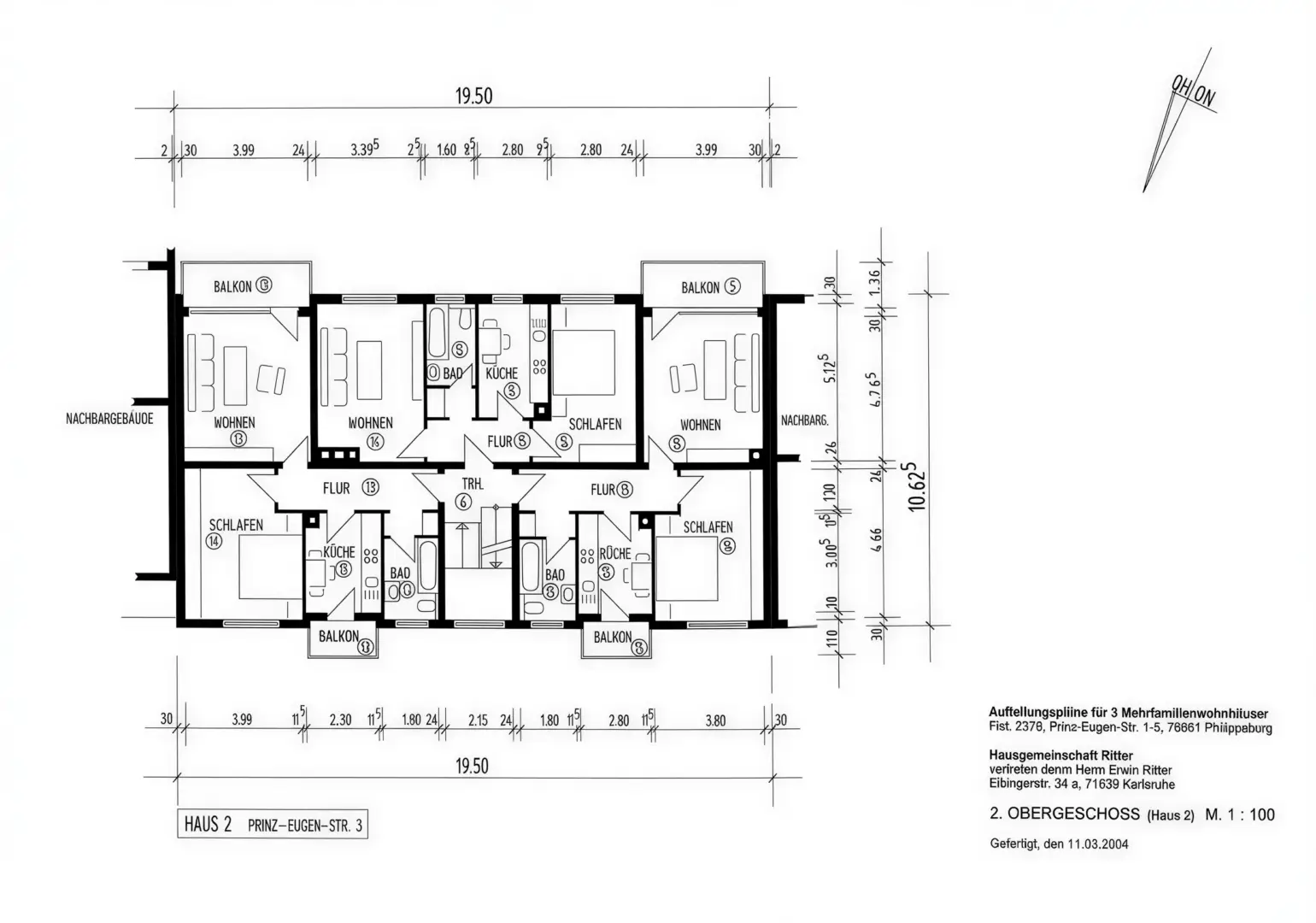
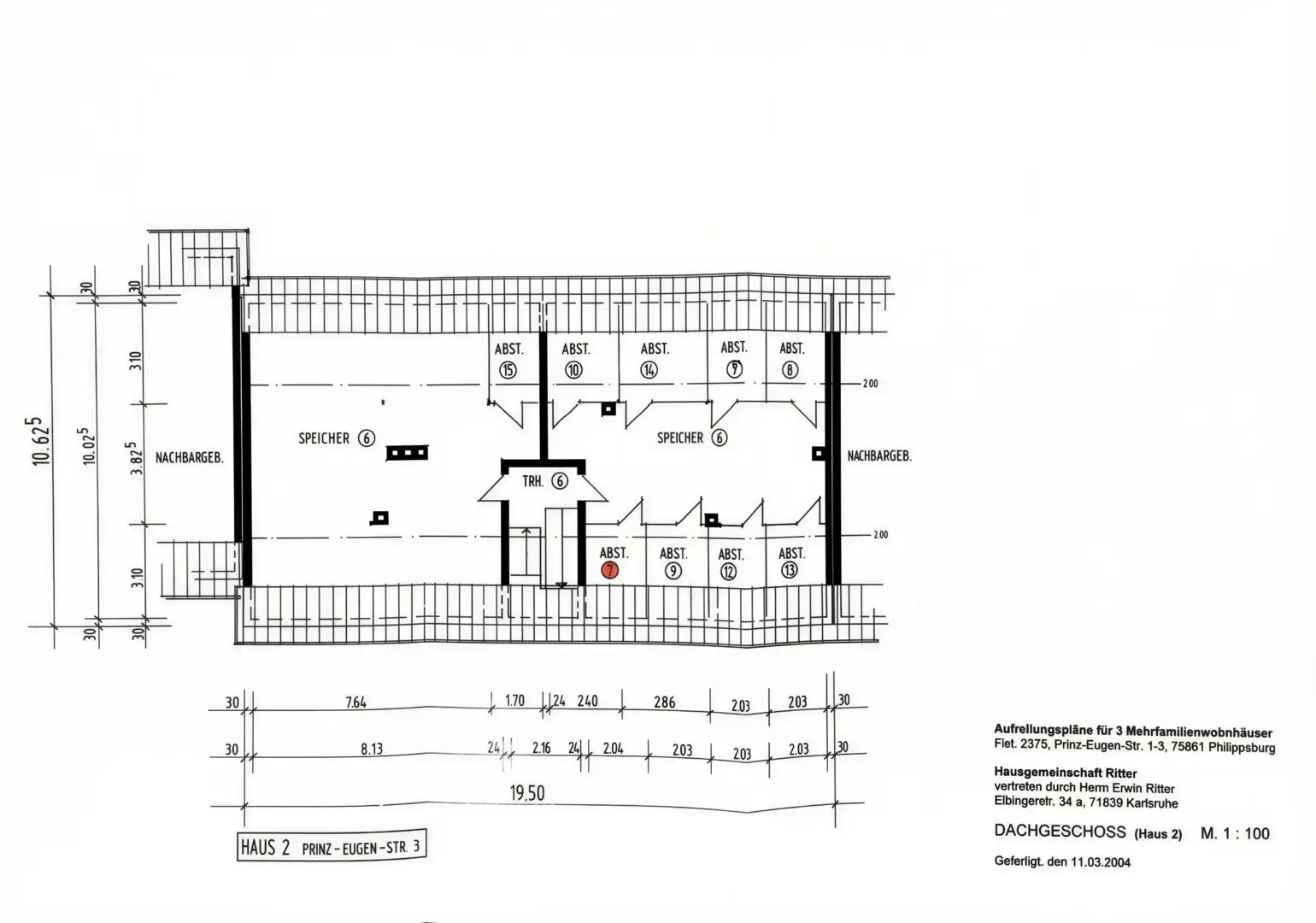
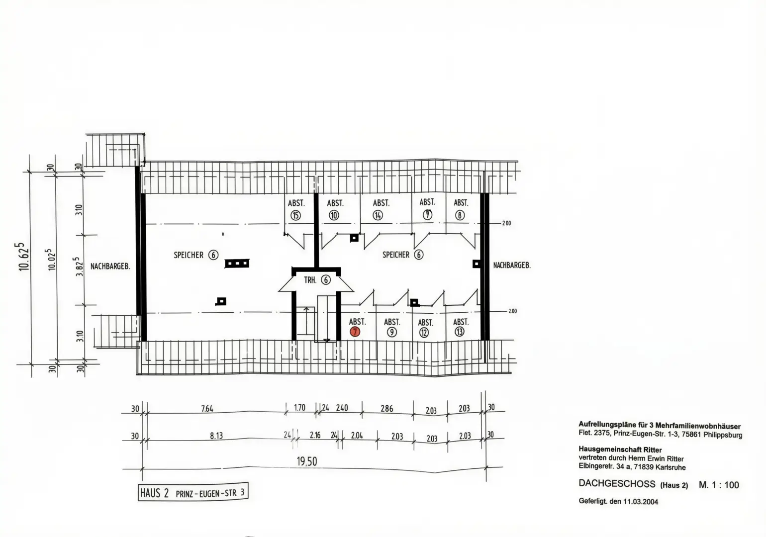
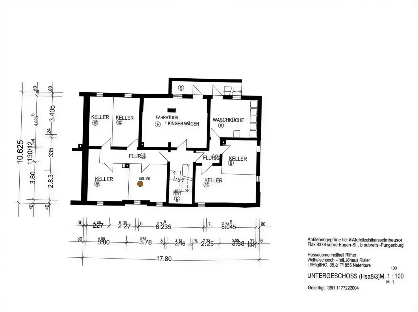
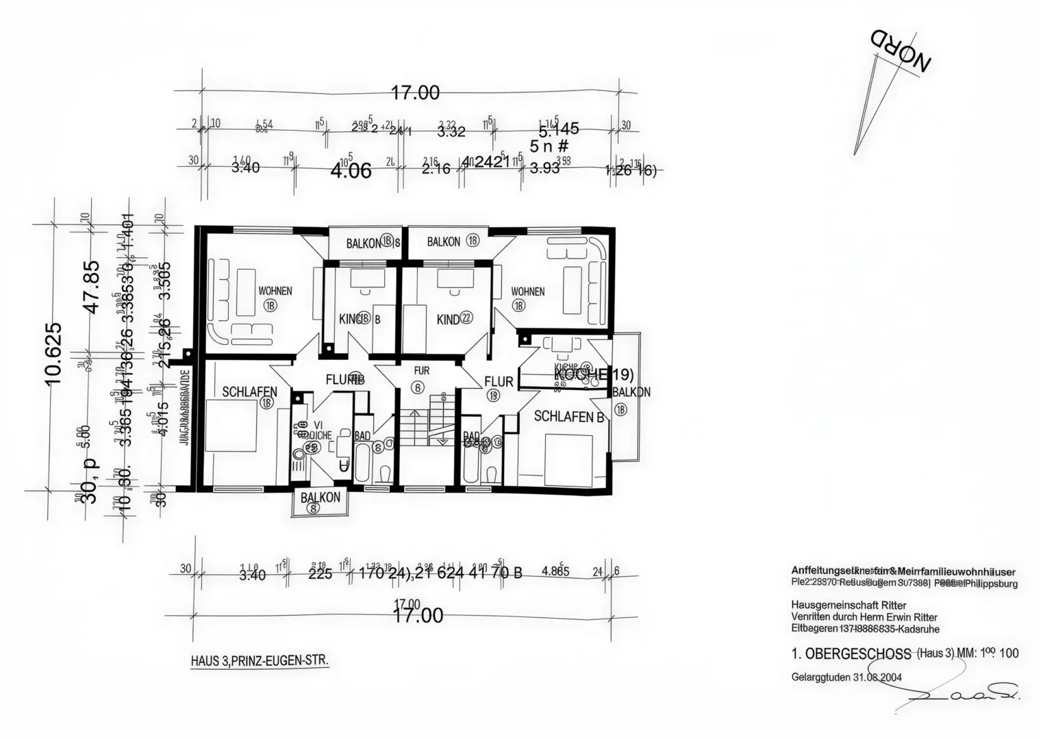
Dieses in den früher 60er Jahren errichtete Mehrfamilienhaus in Philippsburg stellt eine erstklassige Gelegenheit für wertorientierte Investoren dar. Bestehend aus 21 Eigentumswohnungen die sich auf 3 Hauseingängen verteilen. Der Mix aus 2,3 und 4 ZKB verteilt sich auf eine stattliche Wohnfläche von ca. 1.414 m² und einer zusätzlichen Nutzfläche von ca. 792,95 m². Zusammen mit 10 Garagen und 6 Außenstellplätzen bietet die Immobilie eine solide und wirtschaftlich hochattraktive Basis. Die aktuelle Jahreskaltmiete von 160.691,76 € unterstreicht die sofortige Rentabilität des Objekts.
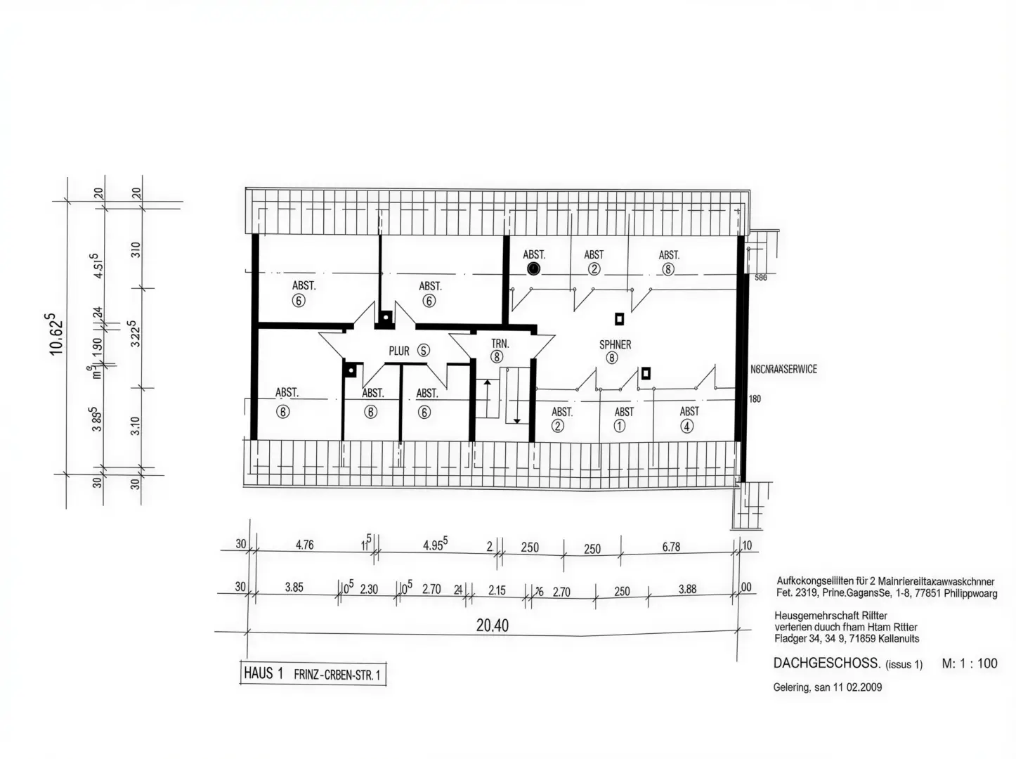
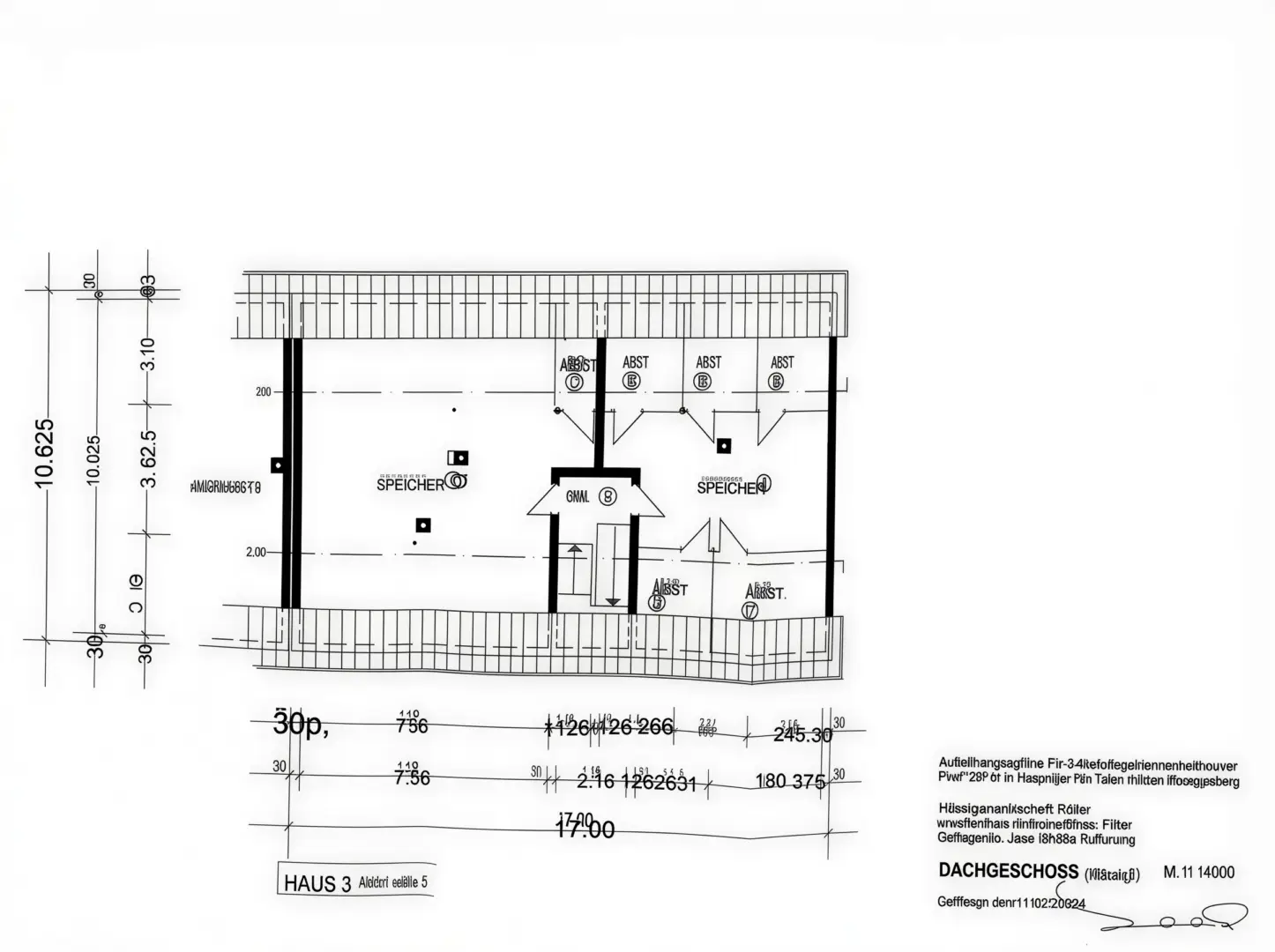
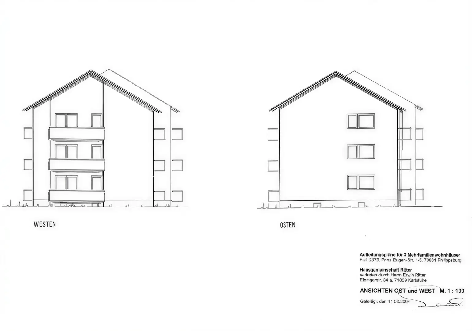
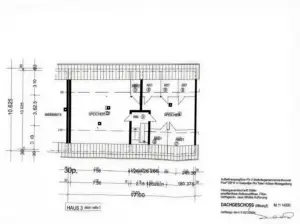
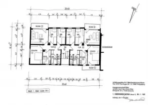
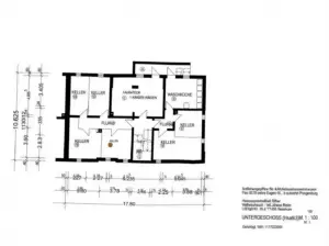
Die Architektur überzeugt durch kompakte Grundrisse, die ein optimales Verhältnis zwischen Kosten und Aufteilung realisieren. Diese Effizienz sorgt für eine hervorragende Vermietbarkeit und eine nachhaltige Mieterstruktur. Ein besonderes Highlight für die zukünftige Wertentwicklung ist die Phantasie eines Ausbaus der Dachböden. Hier lassen sich zusätzliche Wohnraumreserven erschließen, die das Potenzial der Immobilie signifikant steigern. Fast jede Wohneinheit verfügt über einen eigenen Balkon, was die Wohnqualität und die Attraktivität am Markt maßgeblich erhöht. Die solide Bausubstanz und die durchdachte Raumplanung machen dieses Objekt zu einem Kerninvestment für jedes professionelle Portfolio.























